Description
- No Onward Chain
- Semi Detached Bungalow
- Low Maintenance Garden
- Private Driveway
- Single Garage
- 2 Bedrooms
- Walking Distance to Local Shop
- Virtual Tour
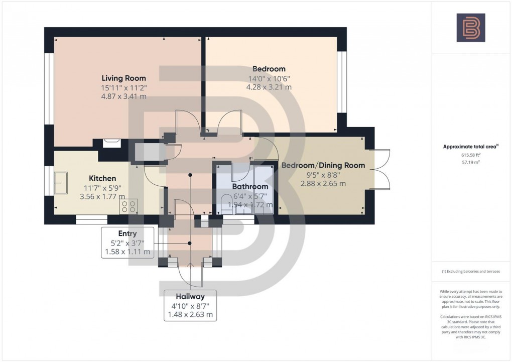
This 2 Bedroom Semi-Detached Bungalow with Single Garage to the rear is offered to the market with NO ONWARD CHAIN. The property offers single level accommodation that in brief comprises: Entrance Porch, Hallway, Kitchen, Living Room, Bedroom, Further Bedroom/Dining Room and Bathroom. The property is located in the popular residential area of Bilton and is within walking distance of the local convenience store. It benefits from a large private driveway to the front and low-maintenance garden to the rear set on various levels with steps.
Entrance Porch (1.48m x 2.36m)
With a UPVC front door to the side elevation giving access. There are windows to both the front and rear elevations. Access to the entrance hall is gained via a door.
Hallway
With doors that provide access through to all accommodation along with providing access to a useful storage cupboard, which houses the hot water cylinder. In addition, there is a cupboard that houses the electricity fuse board and meter.
Living Room (4.87m x 3.41m)
A well proportioned sitting room that provides ample space for a dining table. Within the room, there is a feature fireplace with gas fire. To the front elevation there is a window.
Kitchen (3.56m x 1.77m)
With a range of base and eye level units with a complimentary worktop over. There is a fitted electric oven and grill with four ring electric hob and extractor fan over. Further to this there is a fitted fridge and freezer along with slimline dishwasher and microwave. In addition, there is space and plumbing for a washing machine. To the front and side elevations, there are windows. Access to the loft can be obtained via loft hatch.
Bedroom 1 (4.28m x 3.21m)
A good sized double bedroom benefiting from a range of fitted wardrobes. To the rear elevation there is a window giving a view over the garden.
Bedroom 2/Dining Room (2.88m x 2.65m)
A double bedroom with double opening doors to the rear elevation giving access to the garden.
Bathroom (1.94m x 1.72m)
With a suite that comprises of a low-level flush WC, wash hand basin with vanity unit under and panelled bath with mixer shower attachment. Within the family bathroom, the walls and floor are fully tiled and there is a obscure glazed window to the side elevation. In addition there is a heated towel rail.
Rear Garden
This low maintenance rear garden is in the main laid to a paved patio. The garden is split over four tiers with steps. To the rear boundary, there is a pedestrian gate, which provides access to the rear single garage. The garden boundaries are a combination of fenced and hedged borders. To the front of the garden, there is a pedestrian gate giving access from to the front courtyard and driveway beyond. In addition, there is a useful storage shed.
Single Garage
The single garage is located to the rear of the property and has a manual up and over door. The garage is accessed from a service road, which is accessed from Blackwood Avenue.
Front Garden and Parking
To the front there is a driveway which provides off-road parking for several vehicles. The driveway is part paved and part laid to tarmac. To the boundary there is a hedged border. Gates provide access into an inner courtyard where access to the entrance porch is gained. The properties single garage is located to the rear of the home and accessed from Blackwood Avenue.
Floorplan
