Description
- Modernisation Required Throughout
- No Upward Chain
- Semi-Detached
- Two Bedrooms
- Gardens
- Popular Village Location
- Majority Double Glazed
- Garage & Off Road Parking
- Virtual Tour
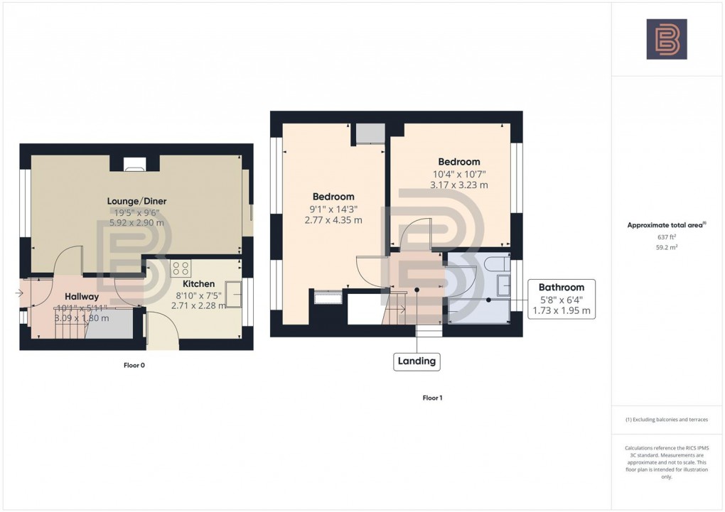
Offered to the market with NO UPWARD CHAIN this Semi-Detached house with GARAGE requires modernisation & improvement. Located within walking distance of two parks, a convenience store and the village school the accommodation briefly comprises : Hallway, Lounge/Diner, Kitchen, Two Double Bedrooms, Bathroom, Front Garden, Off Road Parking, Detached Garage and a Rear Garden.
Hallway
Composite part double glazed front door with vertical double glazed window adjacent. Stairs to first floor. Electric storage heater. Under-stairs cupboard. Doors off to Lounge/Diner and Kitchen.
Lounge/Diner
Double glazed window to the front aspect. Sliding patio doors to the rear aspect. Gas fire with brick surround.
Kitchen
Double glazed window to the garden and double glazed door to the side. Pantry recess with space for fridge/freezer. Range of base and eye level units with work surface over and tiling to splashbacks. Enamel sink drainer with mixer tap. Cooker and washing machine.
Landing
Doors off to both bedrooms and bathroom. Double glazed window to the side aspect. Loft access hatch.
Bedroom One
Two double glazed windows to the front aspect. Two built in cupboards plus airing cupboard.
Bedroom Two
Double glazed window to the rear aspect. Fitted wardrobes.
Bathroom
Double glazed window to the rear aspect. Low flush WC. Panelled bath with electric shower over. Pedestal wash hand basin. Tiling to splashbacks.
Front Garden
Enclosed by low level brick wall and low fence with shrubs and trees. Gate giving garden access. Lawned.
Parking
Concrete hard-standing area for parking. Leads to garage.
Garage
Detached single garage with up-and-over door. Courtesy door and window to the side.
Rear Garden
Enclosed by a mixture of fencing, hedges and shrubs along with the back of several garages. Possible additional car hard standing via the side lane.
Money Laundering Regulations
Should a purchaser(s) have an offer accepted on a property marketed by Ellis Brooke Estate Agents, they will need to undertake an identification check and be asked to provide information on the source and proof of funds. This is done to meet our obligations under Anti Money Laundering Regulations (AML) and is a legal requirement. We use a specialist third party service to verify your information. The cost of these checks is £25 (inc VAT) which is paid in advance, when an offer is agreed and prior to a sales memorandum being issued. This charge is non-refundable under any circumstances.
Floorplan
