Description
- Well Presented Throughout
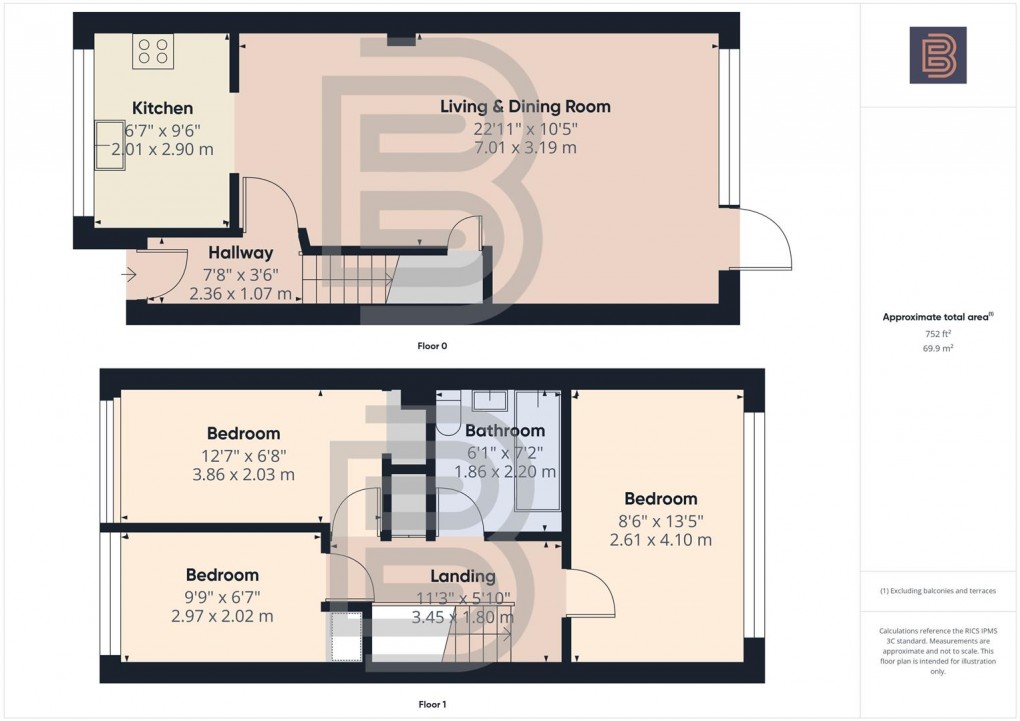
- Three Bedrooms
- Garage to the rear
- Lounge/Diner with Fitted Kitchen
- Upstairs Bathroom
- Double Glazing
- Gas Central Heating with Modern Combination Boiler
- Popular Bilton Location
- Virtual Tour
Located on the popular and convenient Frobisher Road in Bilton, this well-presented terraced home offers three bedrooms with an open-plan lounge and dining room. The house features an upstairs bathroom and has been thoughtfully updated with a replacement boiler and double glazing (to include a replacement composite front door), ensuring comfort and energy efficiency throughout the year. Additionally, there is a useful GARAGE to the rear. Situated in a desirable location, this home is in close proximity to several popular schooling options, making it an ideal choice for families with children. Local shops are also nearby, providing easy access to everyday amenities.
Hallway
Composite part double glazed front door. Wood effect flooring. Radiator. Stairs to first floor. Door to living space.
Lounge/Diner
Opens into Kitchen. Under-stairs storage cupboard. Two radiators. Double glazed window and door onto the rear yard.
Kitchen
Double glazed window to the front aspect. Stainless steel sink/drainer with mixer tap. Range of base and eye level units. Tiling to splashbacks and work surfaces. Space for a fridge/freezer. Space and plumbing for a washing machine. Space for a cooker.
Landing
Doors off to all 3 bedrooms. Door to bathroom. Airing cupboard (with modern Worcester combination boiler). Loft access hatch with pull-down ladder (partially boarded)
Bedroom One
Double glazed window to the rear aspect. Radiator.
Bedroom Two
Double glazed window to the front aspect. Radiator. Built in wardobe area.
Bedroom Three
Double glazed window to the front aspect. Radiator. Over-stairs storage.
Bathroom
Panelled bath with shower over. Tiling to splashbacks. Low flush WC. Pedestal wash hand basin. Heated towel rail. Extractor.
Frontage
Low maintenance stone frontage. Pathway running alongside leading to front door. Small raised planter/border.
Potential to create official off road parking through the obtaining of a dropped kerb (as many of the neighbouring homes have done)
Rear garden
Set over two levels. Primary area is mainly laid with slabs and a shallow stone border. Enclosed by timber fencing. Several steps down to further slabs and a gate giving rear access and leading to rear garage.
Garage
Single garage. Metal up and over door. Power connected.
Accessed via rear lane.
Money Laundering Regulations
Should a purchaser(s) have an offer accepted on a property marketed by Ellis Brooke Estate Agents, they will need to undertake an identification check and be asked to provide information on the source and proof of funds. This is done to meet our obligations under Anti Money Laundering Regulations (AML) and is a legal requirement. We use a specialist third party service to verify your information. The cost of these checks is £25 (inc VAT) which is paid in advance, when an offer is agreed and prior to a sales memorandum being issued. This charge is non-refundable under any circumstances.
Floorplan
