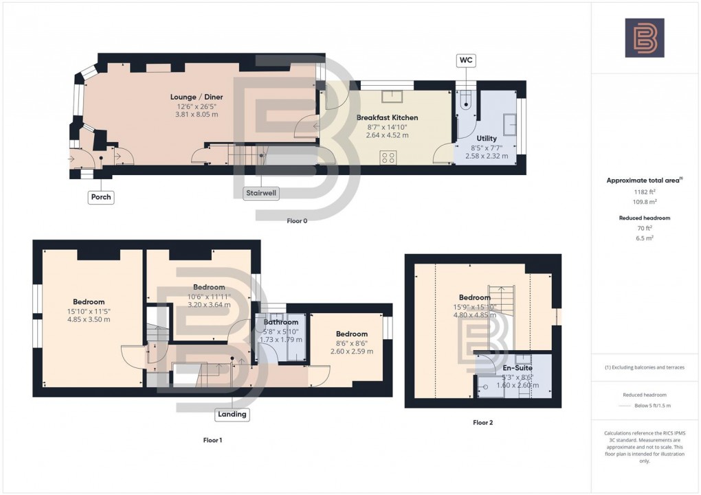
Description
- Four Bedrooms
- Bathroom, En-Suite plus Downstairs WC
- Breakfast Kitchen plus Utility Room
- Close to Railway Station
- Through Lounge/Diner
- Impressive and stylish Loft Conversion
- Rear Garden with decking
- Gas Central Heating and Double Glazing
- Virtual Tour
Conveniently and centrally located within walking distance to the railway station plus several excellent schools this well presented FOUR BEDROOM Traditional Town Centre Terraced Home offers well proportioned accommodation over three floors. Briefly comprising : Porch, Lounge/Dining Room, Breakfast Kitchen, Utility Room with WC, Four Bedrooms over two floors with a Bathroom plus an En-Suite. Additional benefits include Gas Fired Central Heating, Double Glazing and a pleasant rear garden.
Porch
Double glazed composite front door with double glazed window into Lounge/Diner. Wood effect flooring. Further door into Lounge/Diner.
Lounge/Diner
Double glazed bay window to the front aspect and double glazed window to the rear aspect. Door to stairwell. Two feature chimney breast recess areas. Door into Kitchen. Wood effect flooring. Two modern vertical radiators. Coving.
Breakfast Kitchen
Double glazed window to the side aspect. Wooden part glazed door to the garden. Wood effect flooring. Door into Utility Room. Door to under-stairs cupboard. Full range of base and eye level units with work surface over. Stainless steel sink/drainer. Integrated dishwasher. Space for a range style cooker with extractor over. Radiator. Tiling to splashbacks.
Utility
Double glazed window to the rear aspect. Additional sink/drainer. Door to Guest WC. Wood effect flooring. Wall mounted Vaillant combination boiler. Further work surface. Space and plumbing for a washing machine and a dryer. Radiator.
Guest WC
Double glazed window to the side aspect. Wood effect flooring. Low flush WC. Half height tiling.
First Floor Landing
Doors off to three bedrooms plus a door giving access to the loft (4th) bedroom. Storage cupboard. Door to bathroom. Modern vertical radiator.
Bedroom One
Two double glazed windows to the front aspect. Radiator. Stripped wood flooring. Decorative cast iron fireplace.
Bedroom Two
Double glazed window to the rear aspect. Wood floor. Exposed brick feature wall. Radiator. Decorative cast iron fireplace. Small cupboard.
Bedroom Three
Double glazed window to the rear aspect. Radiator.
Bathroom
Double glazed window to the side aspect. Heated towel rail. Panelled bath with shower over. Wall mounted wash hand basin. Inset spotlights. Low flush WC. Inset spotlights. Extractor.
Bedroom Four (Loft Conversion)
Accessed via a door and stair case on the main landing. Three velux style windows. Door to En-Suite. Radiator. Inset spotlights. Eaves storage access.
En-Suite
Velux style window. Tiled floor. Enclosed shower cubicle. Modern sleek wash hand basin with mixer tap. Low flush WC. Extractor. Small eaves storage area. Circular heated towel rail.
Frontage
Low maintenance walled frontage with slate chippings. Private accessway through to the rear garden (only used by this property)
Rear Garden
Enclosed by a mixture of brick wall and timber fencing. Initial decked side return with seating area. Side access to the street. Lawned area with pathway and borders.
Money Laundering Regulations
Should a purchaser(s) have an offer accepted on a property marketed by Ellis Brooke Estate Agents, they will need to undertake an identification check and be asked to provide information on the source and proof of funds. This is done to meet our obligations under Anti Money Laundering Regulations (AML) and is a legal requirement. We use a specialist third party service to verify your information. The cost of these checks is £25 (inc VAT) which is paid in advance, when an offer is agreed and prior to a sales memorandum being issued. This charge is non-refundable under any circumstances.
Floorplan
