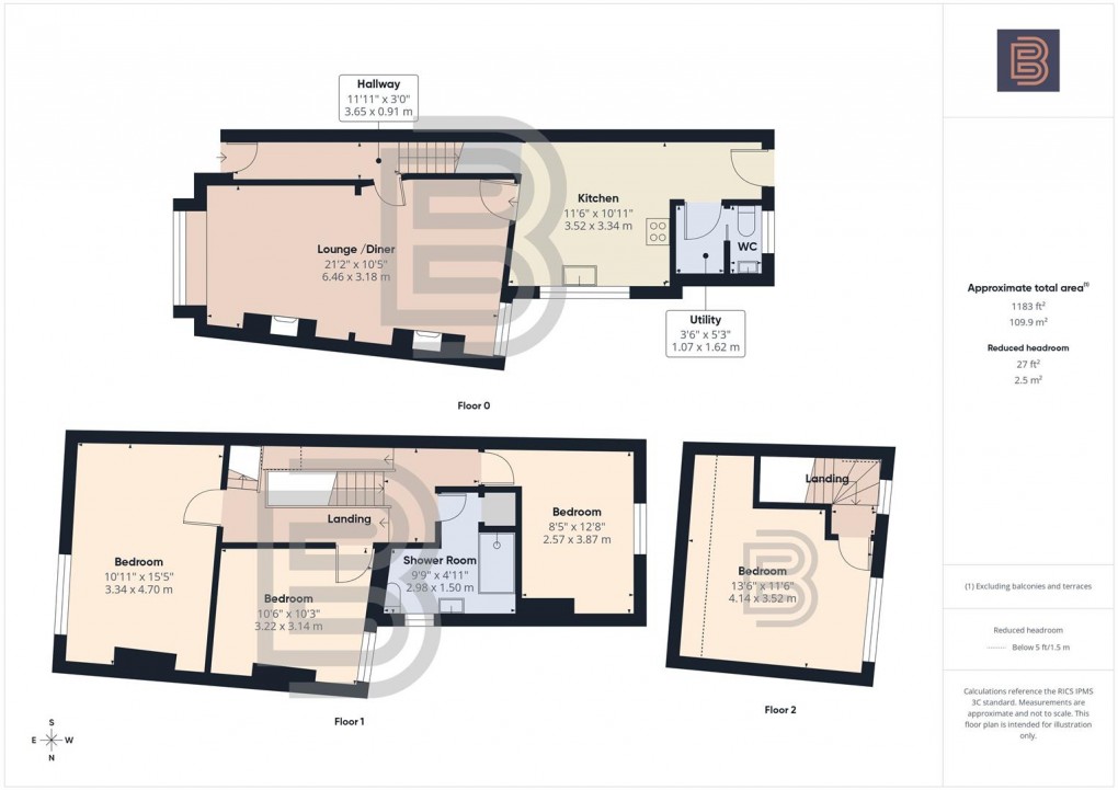
Description
- Four Bedrooms
- Well Presented Throughout
- Close To Railway Station
- Enclosed Rear Yard
- Re-Fitted Kitchen
- Re-Fitted Shower Room
- Replacement Worcester Combination Boiler
- Double Glazing
- Virtual Tour
Located on a quiet road close to Rugby Town Centre and mainline Railway Station (with services to London Euston in under an hour) this very well presented Traditional Terraced Home offers FOUR GOOD SIZE BEDROOMS. The overall accommodation briefly comprises : Hallway, Lounge/Diner, Re-Fitted Kitchen, Utility, Guest WC, Four Good Size Bedrooms along with a good size Shower Room. Additional benefits include an Enclosed Shallow Frontage, Paved Rear Yard, Replacement Worcester Combination Boiler plus Double Glazing. Early viewing is considered essential.
Hallway
Composite front door. Radiator. Stairs to first floor. Door to Lounge/Diner. Coving.
Lounge/Diner
Double glazed windows to the front and rear aspects. Painted wood floor. Door to Kitchen. Two radiators. Two inset tiled chimney breast areas. Coving to one section.
Kitchen
Double glazed window to the side and double glazed door to the rear yard. Door to Utility. Under-stairs area. Full range of base and eye level units with work surfaces over. Ceramic sink/drainer with mixer tap. Wall mounted Worcester combination boiler. Space for a cooker with extractor over. Space for a fridge/freezer. Radiator. Space and plumbing for dishwasher.
Utility
Tiled floor. Sliding door to WC. Space and plumbing for washing machine plus dryer. Inset spotlights.
WC
Double glazed window. Tiled floor. Low flush WC. Wash hand basin set atop vanity unit. Inset spotlights.
Landing
Doors off to 3 bedrooms and shower room. Stairs to Top Floor. Inset spotlights.
Bedroom One
Double glazed window to the front aspect. Radiator. Inset spotlights.
Bedroom Three
Double glazed window to the rear aspect. Radiator.
Bedroom Four
Double glazed window to the rear aspect. Radiator.
Shower Room
Double glazed window to the side aspect. Wood effect flooring. Radiator. Open storage/cupboard area. Wash hand basin with storage below. Low flush WC. Double shower cubicle with rainfall style shower head. Tiling to splashbacks. Inset spotlights. Extractor.
Top Floor Landing
Double glazed window to the rear aspect. Eaves access. Door into Bedroom Two.
Bedroom Two
Double glazed window and Velux window. Eaves access. Radiator. Fixed wardrobe.
Frontage
Enclosed by low level brick wall. Slab and slate chipping frontage. Gated side access alley leading to rear garden.
Rear Yard
Fully enclosed mainly by timber fencing. Gate to the side. Brick built pond. Shed with hard-standing.
Money Laundering Regulations
Should a purchaser(s) have an offer accepted on a property marketed by Ellis Brooke Estate Agents, they will need to undertake an identification check and be asked to provide information on the source and proof of funds. This is done to meet our obligations under Anti Money Laundering Regulations (AML) and is a legal requirement. We use a specialist third party service to verify your information. The cost of these checks is £25 (inc VAT) which is paid in advance, when an offer is agreed and prior to a sales memorandum being issued. This charge is non-refundable under any circumstances.
Floorplan
