Description
- NO ONWARD CHAIN
- Detached
- 3 Bedrooms
- Ensuite
- Single Garage
- Off Road Parking
- Garden
- Conservatory
- Close Proximity to Local Amenities
- Virtual Tour
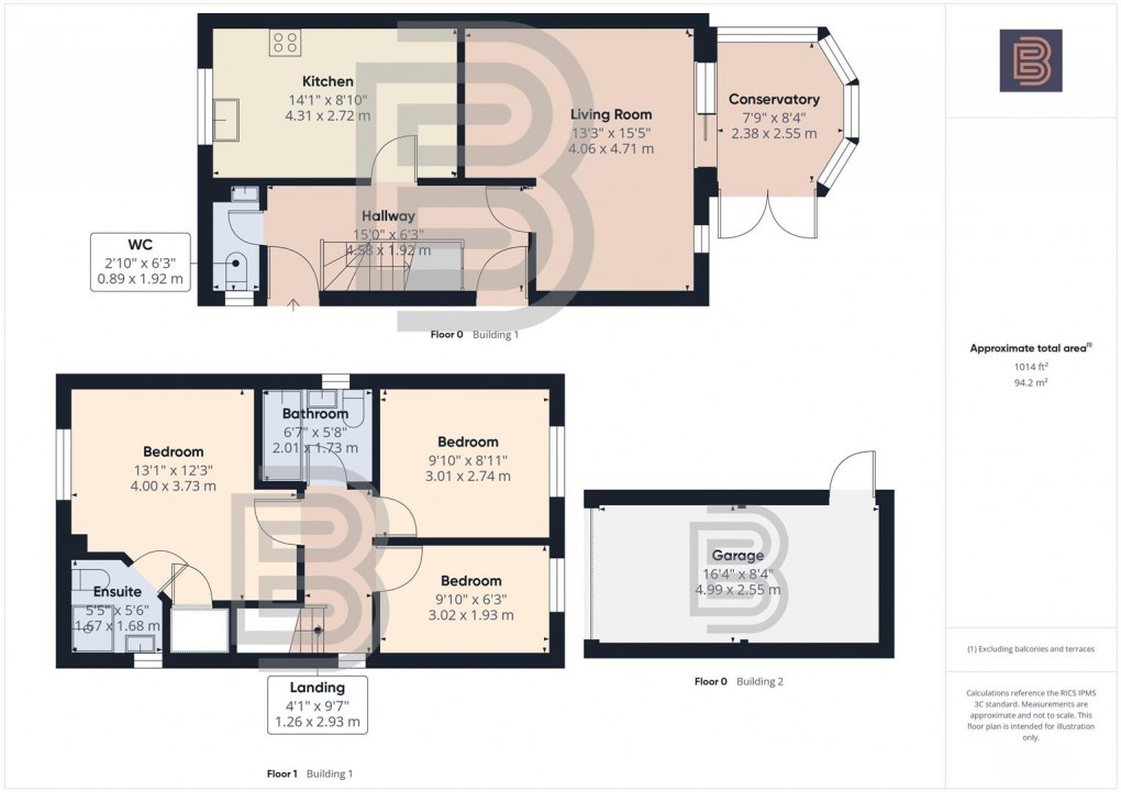
This 3 Bedroom Detached home with Single Garage is offered to the market with NO ONWARD CHAIN. Located in the ever popular location of Long Lawford, the property is situated on a quiet no through road and has accommodation that is set over two floors and in brief comprises; Entrance Hall, Living Room, Kitchen, Conservatory, W/C, 3 Bedrooms, Ensuite to Master and Family Bathroom. Externally the home has a private driveway, single garage and rear garden. Long Lawford is ideally located for access into Coventry, Leamington Spa & Rugby and the village itself offers some excellent local amenities within close proximity which include a shop, pub and the highly regarded Long Lawford Primary School. The location further benefits from excellent travel links including Rugby railway station which offers regular services to Birmingham and London Euston in under an hour. There is also easy access to the extensive motorway networks surrounding Warwickshire including the A45, A5, A14, M1 and the M6.
Entrance Hall
The property is accessed under a covered storm porch and through a composite front door where you arrive in the entrance hall. There are stairs that rise to the first floor landing, a door giving access to the rear garden and in addition doors which give access through to all ground floor accommodation
Living Room
A good size living room which has a frosted window to the rear elevation and further set of sliding patio doors which give access through to the conservatory.
Conservatory
With double glazed windows to two elevations and further double opening doors to the third, which give access to the garden beyond. This light and airy room provides an additional reception room to the property.
Kitchen
The kitchen comprises of a range of base and eye level units with a complimentary work top over. To the side elevation there is a window that provides natural light. Within the kitchen there is space for an electric oven, washing machine, dishwasher and tall fridge freezer.
W/C
With a low level flush WC and wash hand basin. To the front elevation there is a frosted window and there is tiling to the splash back area.
1st Floor Landing
The first floor landing benefits from a frosted window to the side elevation. Access to the loft is obtained via a loft hatch. Further to this there are doors which give access to all first floor accommodation.
Bedroom 1
A good sized double bedroom that benefits from a window to the front elevation. This bedroom gives access to a useful storage cupboard, which houses the properties boiler. The bedroom further benefits from its own ensuite.
Ensuite
With a suite that comprises a low-level flush WC, wash hand basin with vanity unit under and shower cubicle. To the side elevation there is a frosted window, there is tiling to the splash back areas and there is a wall mounted heated towel rail.
Bedroom 2
A double bedroom with a window to the rear elevation, providing a view over the garden.
Bedroom 3
A good sized single bedroom with a window to the rear elevation, providing a view over the garden.
Bathroom
With a suite that comprises a low-level flush WC, wash hand basin with vanity unit under and paneled bath with shower over. There is a frosted window and wall mounted heated towel rail.
Rear Garden
The property benefits from a private and enclosed rear garden. To the immediate rear of the home is a patio which provides space for outdoor seating and dining. From here a paved pathway runs the length of the garden to a further patio providing a another seating area. The remainder of the garden has been laid to lawn with a flower board stocked with a range of shrubs and plants. From the garden there is gated access to the driveway and a pedestrian door giving access to the garage.
Drvieway
To the front of the home there is a tarmac and paved driveway, which provides off-road parking for 3 vehicles. The driveway provides access to the properties garage. From the driveway there is a pathway which gives access to the front door and there is gated access to the rear garden.
Garage
The garage benefits from a manual up and over door to the front elevation. There is light and power connected and further storage available within the rafters. To the side elevation there is a pedestrian door which gives access to the garden.
Money Laundering Regulations
Should a purchaser(s) have an offer accepted on a property marketed by Ellis Brooke Estate Agents, they will need to undertake an identification check and be asked to provide information on the source and proof of funds. This is done to meet our obligations under Anti Money Laundering Regulations (AML) and is a legal requirement. We use a specialist third party service to verify your information. The cost of these checks is £25 (inc VAT) which is paid in advance, when an offer is agreed and prior to a sales memorandum being issued. This charge is non-refundable under any circumstances.
Floorplan
