Description
- Very Well Presented
- Two Bedroom Modern Home
- Driveway for 2 Cars
- Enclosed Rear Garden
- Cul-De-Sac Location
- Ideal First Time Buy
- Double Glazing and Gas Central Heating
- Upstairs Bathroom
- Virtual Tour
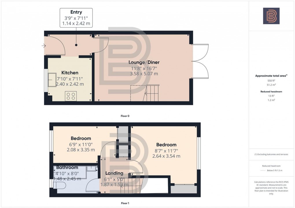
Situated in a quiet cul-de-sac on the North side of Rugby this modern mews house is considered an Ideal First Time Buy or rental investment. Being very well presented throughout and offering DRIVEWAY FOR 2 CARS the accommodation comprises : Entrance Hallway, Kitchen, Lounge/Diner, Two Bedrooms, Bathroom. Driveway and an enclosed lawned rear garden. Early viewing is advised.
Hallway
Composite part double glazed front door. Wood effect flooring. Doorway to Kitchen. Radiator. Door to Lounge/Diner.
Kitchen
Double glazed window to the front aspect. Range of base and eye level units with work surfaces over and tiling to splashbacks. Integrated cooker with gas hob and extractor. Stainless steel sink/drainer with mixer tap. Space for fridge/freezer. Space and plumbing for a washing machine. Wall mounted combination boiler.
Lounge/Diner
Double glazed French Doors to the rear garden. Two radiators. Wood effect flooring. Stairs to first floor.
Landing
Doors off to both bedrooms. Door to bathroom. Storage cupboard. Loft access hatch.
Bedroom One
Double glazed window to the rear aspect. Built in wardrobe. Radiator.
Bedroom Two
Double glazed window to the front aspect. Radiator. Built in cupboard.
Bathroom
Double glazed window to the rear aspect. Heated towel rail. Panelled bath with shower over. Tiling to splashbacks. Low flush WC. Wash hand basin set into vanity unit. Extractor.
Driveway/Frontage
Side-by-side parking for two cars. Small low maintenance slate chipping area.
Garden
Enclosed by timber fencing. Initial full width patio. Majority laid to lawn with shed and hard-standing plus bark chippings at the end.
Money Laundering Regulations
Should a purchaser(s) have an offer accepted on a property marketed by Ellis Brooke Estate Agents, they will need to undertake an identification check and be asked to provide information on the source and proof of funds. This is done to meet our obligations under Anti Money Laundering Regulations (AML) and is a legal requirement. We use a specialist third party service to verify your information. The cost of these checks is £25 (inc VAT) which is paid in advance, when an offer is agreed and prior to a sales memorandum being issued. This charge is non-refundable under any circumstances.
Floorplan
 
												