Description
- 3 Double Bedrooms
- Immaculate Condition
- Kitchen Family Room
- Ensuite to Master
- Popular Long Lawford Location
- Utility
- Spacious Rooms
- Off Road Parking
- Virtual Tour
This immaculately presented 3 Double Bedroom Detached property is situated on a quiet no through road in the ever popular location of Long Lawford. The home has been well maintained and extended by the current owners and has accommodation that is set over two floors and in brief comprises; Entrance Hall, Living Room, Kitchen Family Room, Utility, WC, Office/Store Room, Three Double Bedrooms, Ensuite to Master and Family Bathroom. Externally the home has a well maintained rear garden along with a good sized driveway offering off road parking for 3/4 vehicles to the front. Long Lawford is ideally located for access into Coventry, Leamington Spa & Rugby and the village itself offers some excellent local amenities within close proximity which include a shop, pub and the highly regarded Long Lawford Primary School. The location further benefits from excellent travel links including Rugby railway station which offers regular services to Birmingham and London Euston in under an hour. There is also easy access to the extensive motorway networks surrounding Warwickshire including the A45, A5, A14, M1 and the M6.
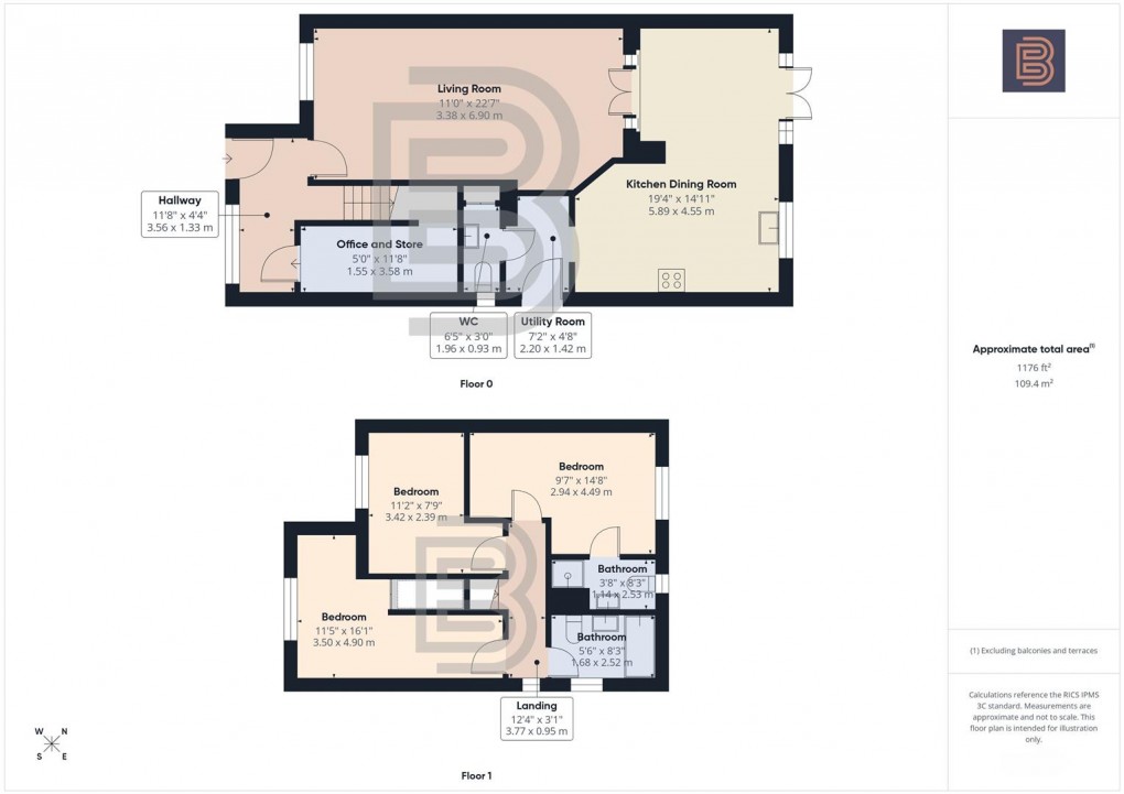
Entrance Hall (3.56m x 1.33m)
A spacious and bright entrance hall provides a welcoming entrance to the home. From here there are stairs that rise to the first floor and doors which give access through to the living room and office/boot room.
Living Room (3.38m x 6.9m)
A very good sized room that benefits from a window to the front elevation. Further benefiting from modern and stylish paneling to feature areas and to the rear elevation there are double opening doors which give access through to.
Kitchen/Dining/Family Room (5.89m x 4.55m (max))
A beautifully presented and well proportioned room that occupies the whole rear elevation of the property. The kitchen itself is configured into an "L" shape and comprises a range of base and eye level units with a worktop over. Within the kitchen there is space for a range style cooker and American style fridge freezer. Further to this there is a fitted dishwasher. From the kitchen area there is an opening to the utility space and to the rear elevation there is a window that provides a view over the garden and double opening doors giving access to the outside. The room provides ample space for a dining table or seating.
Utility (2.2m x 1.42m)
The utility space has a base and eye level unit with a worktop over. There is space and plumbing for a washing machine and to the side elevation is a door giving access to the outside.
WC (1.96m x 0.93m)
With a low level flush WC and wash hand basin with vanity unit under. The WC benefits from a frosted window to the side elevation and a useful fitted storage cupboard.
Office/Boot Room (1.55m x 3.58m)
A useful room used by the current owners as a home office and boot room.
1st Floor Landing (3.77m x 0.95m)
The first floor landing benefits from a frosted window to the side elevation which provides the area with natural light. There are doors which provide access through to all first floor accommodation.
Bedroom 1 (2.94m x 4.49m (max))
A spacious double bedroom with a window to the rear elevation. The bedroom benefits from having an ensuite. The room provides ample space for a king sized bed and other usual bedroom furniture.
Ensuite (1.14m x 2.53m)
With a suite that comprises of a low-level flush WC, wash hand basin and shower.The walls are part tiled and to the rear elevation there is a frosted window.
Bedroom 2 (3.42m x 2.39m)
A double bedroom with a window to the front elevation. Access to the loft is obtained via a loft hatch.
Bedroom 3 (3.5m x 4.9m)
A double bedroom with a window to the front elevation. This bedroom further benefits from a range of useful fitted cupboards.
Bathroom (1.68m x 2.52m)
With a suite that comprises of a low-level flush WC, wash hand basin and paneled bath with mixer shower over. To the side elevation there is a frosted window and within the bathroom there is tiling to all splash back areas.
Rear Garden
To the rear of the home there is a private and enclosed garden, enclosed by fencing to all elevations. In the main this garden has been laid to lawn with a two paved patio areas providing ample space for seating and alfresco dining. The garden benefits from a range of mature planting, and to the side of the home there is a paved pathway where there is gated access to the driveway.
Front Garden and Parking
To the front of the property there is a block paved driveway which provides off-road parking for 3/4 vehicles. From the driveway there is access to the front door and to the side of the home a pedestrian gate giving access to the garden. There is an EV charge point.
Money Laundering Regulations
Should a purchaser(s) have an offer accepted on a property marketed by Ellis Brooke Estate Agents, they will need to undertake an identification check and be asked to provide information on the source and proof of funds. This is done to meet our obligations under Anti Money Laundering Regulations (AML) and is a legal requirement. We use a specialist third party service to verify your information. The cost of these checks is £25 (inc VAT) which is paid in advance, when an offer is agreed and prior to a sales memorandum being issued. This charge is non-refundable under any circumstances.
Floorplan
