Description
- No Upward Chain
- New Carpets & freshly decorated
- Three Bedrooms
- Dormer Bungalow
- Good Size Front & Rear Gardens
- Driveway & Garage
- Hillmorton Location
- Close to Local Shops, Bus Routes & Schools
- Semi-Detached
- Virtual Tour
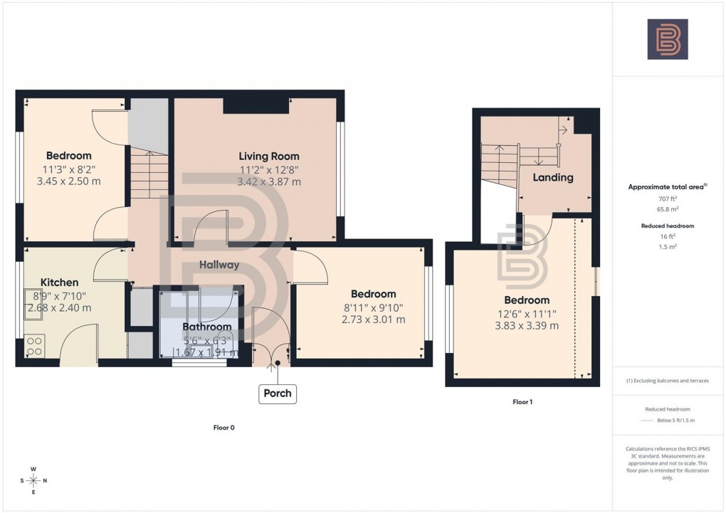
Offered to the market with NO UPWARD CHAIN this Semi-Detached Bungalow has been freshly decorated and carpeted but requires modernisation in some parts. Offering a prime Hillmorton Location within walking distance of Local Shops, Bus Routes and Schools the well proportioned and flexible accommodation comprises : Hallway, Lounge, Kitchen, Two Ground Floor Bedrooms, Ground Floor Bathroom plus one further upstairs bedroom with landing area. To the front of the property is a tiered fore-garden with Driveway leading to Garage via wooden gates. To the rear is a nice size enclosed sloped garden.
Porch
Double glazed doors into small porch with wooden part glazed door into hallway.
Hallway
Doors off to Lounge, Kitchen, Two Bedrooms and Bathroom. Stairs to first floor. Radiator. Storage cupboard (former airing cupboard)
Lounge
Double glazed window to the front aspect. Radiator.
Kitchen
Double glazed window to the garden. Double glazed door to the side. Heated towel rail. Wall mounted Baxi combination boiler. Stainless steel sink. Range of base and eye level units with work surface over. Space for cooker. Space and plumbing for washing machine. Space for several other white goods. Pantry cupboard with small window. Wood effect flooring.
Bedroom One
Double glazed window to the front aspect. Radiator. Coving.
Bedroom Two
Double glazed window to the rear aspect. Radiator. Under-stairs cupboard.
Bathroom
Double glazed window to the side aspect. Radiator. Panelled bath with electric shower over. Low flush WC. Pedestal wash hand basin. Tiling to splashbacks.
Landing
Door into bedroom. Space for perhaps a desk or storage unit.
Bedroom Three
Double glazed window to the rear aspect. Eaves access.
Front Garden
Tiered garden with gravel, shrubs, bushes, plants and hedge.
Driveway
Concrete driveway runs alongside the property through wooden gates and leads to the garage and rear garden.
Garage
Single garage (concrete sectional construction) with up and over door.
Rear Garden
Set over several levels. Initial patio with steps leading to stone and gravel area which has some plants and shrubs. In turn this leads to the lawned section with curved flower beds and border to both sides. Enclosed by timber fencing with a shed at the end of the garden and another path.
Money Laundering Regulations
Should a purchaser(s) have an offer accepted on a property marketed by Ellis Brooke Estate Agents, they will need to undertake an identification check and be asked to provide information on the source and proof of funds. This is done to meet our obligations under Anti Money Laundering Regulations (AML) and is a legal requirement. We use a specialist third party service to verify your information. The cost of these checks is £25 (inc VAT) which is paid in advance, when an offer is agreed and prior to a sales memorandum being issued. This charge is non-refundable under any circumstances.
Floorplan
